Listings Details

Needs Updates

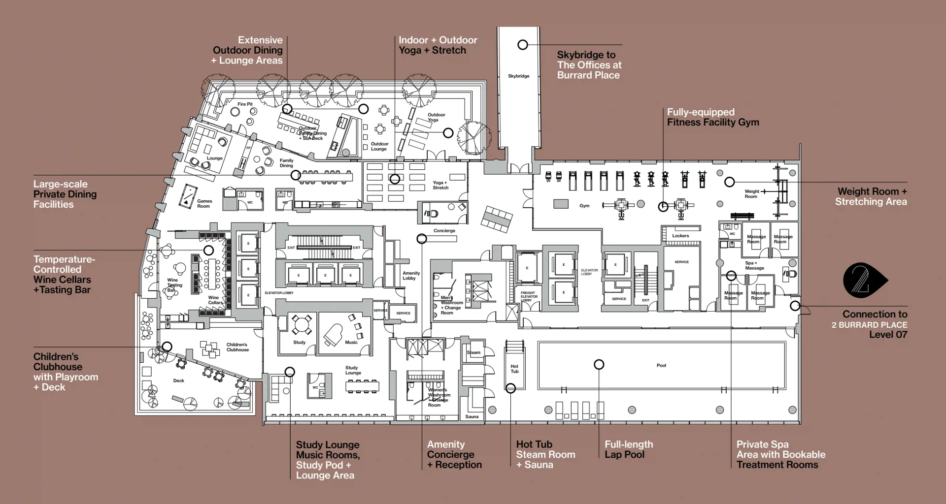
2 Burrard Place CONDO

📍 Address: 1277 HORNBY STREET, VANCOUVER, BC
🔄 Updated: Jan. 26, 2026, 6:36 p.m.

Price

3,994,900

Sq. Ft

1331.00

Beds

2.5

Baths

2.0
Description

TBD